Stabilimento Panarello, variante ad personam che viola anche i confini catastali. Non si ferma la lotta del Comitato
E intanto arriva una nuova vittoria in Municipio: bocciato per la seconda volta il progetto di ampliamento della fabbrica dolciaria
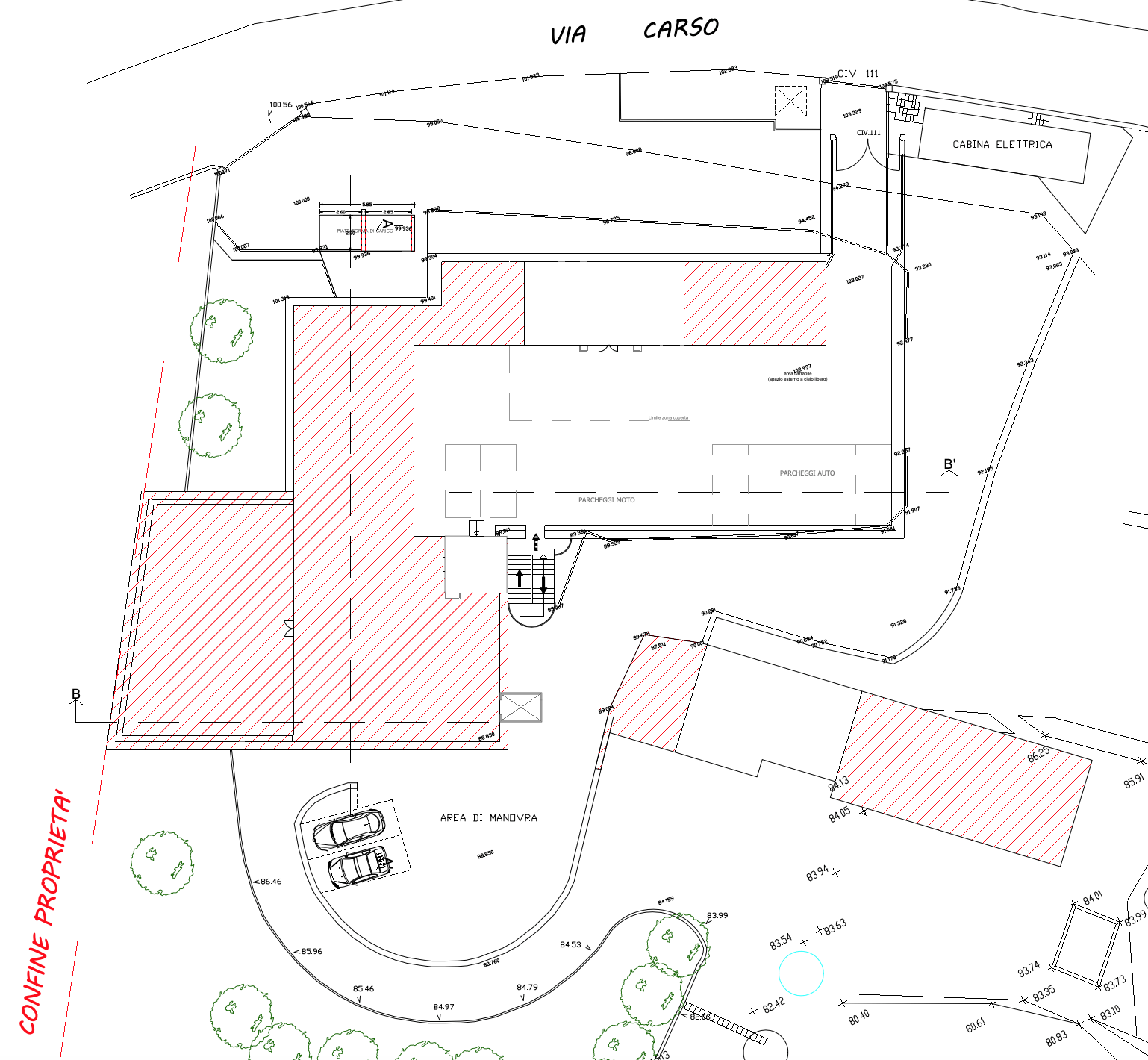
Genova – “Non capisco proprio come abbiano potuto pensare di fare un ampliamento spostando il confine della proprietà e segnandolo anche sulla tavola di progetto“.
È sconcertata Elisabetta Curti, la presidente del Comitato per la Tutela del Parco dei Forti e delle Mura, che esce dalla conferenza capigruppo sul caso Panarello con niente in mano, ma solo la promessa di una commissione comunale calendarizzata al prossimo 7 gennaio e tante domande.
Ad esempio come mai non è mai stata contattata dalla proprietà visto che il terreno confinante con la fabbrica è proprio il suo.
“Per questo me ne sono accorta”, ci spiega aggiungendo che lo sconfinamento le è “saltato all’occhio guardando i disegni della proposta di variante“.
Un bel pasticcio. Tanto che il Comitato è pronto a fare ricorso al TAR.
Ce lo conferma Giovanni Spalla, che in sostegno del Comitato e a nome di Italia Nostra, tiene a precisare che la questione dei confini è un fatto urbanistico da non sottovalutare. “La Panarello, secondo le carte del progetto presentato al Comune di Genova, invade un terreno altrui e non può farlo perché secondo il codice civile si dovrebbe rispettare una distanza quantificata in non meno di 5 metri”.
E quindi?
Quindi succederà che i proprietari del terreno faranno causa al Comune, tanto più che dalla loro parte hanno il Municipio Media Valbisagno che ieri ha bocciato per la seconda volta la proposta di variazione della Giunta.
Ma non finisce qui. Secondo Spalla il problema è più grosso e investe l’essenza stessa dell’urbanistica perché “le norme del piano regolatore derivano direttamente dall’articolo 9 della Costituzione che tutela il paesaggio e il patrimonio storico e artistico della Nazione”. Concedere delle varianti ad personam, dunque, fa degli abitanti di alcuni territori dei cittadini di serie B. “Le deroghe dovrebbero vale per tutti perché di fronte al piano regolatore i cittadini sono tutti uguali. In realtà la speculazione edilizia è una forzatura che pone le persone su piani diversi”, si arrabbia Spalla che poi sul cambiamento della destinazione d’uso da area verde ad area industriale fa notare che il Parco dei Forti e delle Mura è un contenitore formidabile di biodiversità, che andrebbe tutelata anche a favore dello sviluppo del turismo.
E invece niente. Queste cose il rappresentante di Italia Nostra le ha dette il 21 dicembre in conferenza capigruppo ma “non so se mi sono stati a sentire. Di certo mi hanno impedito di fare il mio intervento completo e per una questione così complessa mi hanno dato solo dieci minuti”, lamenta l’architetto che poi si sofferma anche sul PUC per farci un’altra rivelazione che ha dell’incredibile: “Pensate un po’ che sul PUC vigente la Panarello non esiste“.
Facciamo un salto sulla sedia. Come non esiste?
I fatti sono questi. Il PUC 2000, quello della sindaca Marta Vincenzi per intenderci, inseriva l’azienda nel parco come attività produttiva vera e propria. Peccato che sia stato impugnato e poi rifatto dal sindaco Marco Doria che di fatto ha congelato la Panarello su un terreno che è tornato area verde di pertinenza del Parco dei Forti e delle Mura.
E questo è un bel pasticcio perché oggi il Comune richiama il PUC 2000 per giustificare le modifiche.
E vediamolo: “Nondimeno pare utile rammentare che anche il precedente Piano Urbanistico Comunale (PUC 2000) inseriva l’edificio e i terreni in argomento in Zona D (Produttivo), sottozona DT (sottozona artigianale e industriale, discosta dall’abitato e caratterizzata da situazioni di degrado, non compatibile con le funzioni urbane e compatibile con alcune funzioni speciali)”, si legge nelle carte della proposta di variante che poi continua riaffermando che “il Piano, in allora, pur riconoscendo all’intera zona una vocazione agricola, aveva ritenuto opportuno confermare per l’attività in essere (storica per la città di Genova) la destinazione produttiva, al fine di non creare difficoltà, almeno urbanistiche, al mantenimento e possibile incremento dell’attività”.
Ma perché tirar fuori un PUC superato? Chissà. Di certo c’è che una fabbrica su un terreno agricolo all’interno di un parco non vale molto, con buona pace della sua storicità.
Senza contare il precedente spaventoso che si va a creare e che fa il paio con il caso del cambio di destinazione chiesto dal Marchese per costruire a Vesima, con le vicende di Campostano o dei bassi in Centro Storico.
Insomma, tante piccoli variazioni al posto di rifare l’iter del PUC con le quali “il Comune sta smantellando il nostro paesaggio”, conclude Spalla aggiungendo che “lo fa con una deregulation totale e senza rispettare il fatto che l’urbanistica è un diritto dei cittadini” e non una variante che devono subire.
Simona Tarzia
I prospetti dello stato di confronto dove sono segnati i confini
